Klik hier voor de webversie

Gemeente Staphorst start met het maken van plannen voor Fase 2 van de nieuwe woonwijk Rouveen Zuid. U kunt meedenken van 8 tot en met 26 september 2025. In deze nieuwsbrief leest u hier meer over.

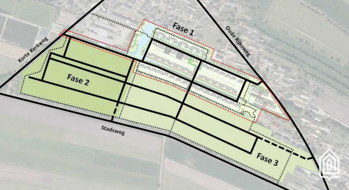
Fase 2: denk en praat mee over de plannen voor woningbouw


Gemeente Staphorst start met de plannen voor fase 2 van Rouveen Zuid. In dit gedeelte van de nieuwe woonwijk is ruimte voor ongeveer 100 woningen.


Fase 2 en 3 vormen in de toekomst samen de nieuwe zuidrand van het dorp. Daarom maken we eerst een stedenbouwkundige visie voor fase 2 en 3. Dit is een globale schets van hoe de woonwijk eruit kan komen te zien.


Wij willen graag een woonwijk ontwerpen die past bij Rouveen en (toekomstige) bewoners. Daarom horen we graag wat u belangrijk vindt. Wat zijn uw ideeën en aandachtspunten voor de nieuwe woonwijk? Wat zijn uw woonwensen of aan welke type woningen is volgens u behoefte? Uw mening helpt ons bij het maken van de plannen.

Hoe kunt u meedenken?


U kunt meedenken op 2 manieren:

Op de inloopavond

U bent van harte welkom op de inloopavond op:

  • Dinsdagavond 23 september 2025
  • Vrije inloop tussen 17.30 en 20.00 uur
  • D’ Olde Skoele Rouveen, Oude Rijksweg 427 te Rouveen

Aanmelden kan via www.staphorst.nl/rouveenzuid-fase2

Digitaal meedenken

U kunt digitaal meedenken tot en met 26 september 2025.


Vul het formulier in via

www.staphorst.nl/rouveenzuid-fase2

Hoe gaat het daarna verder?


Stap 1: Stedenbouwkundige visie maken

Met de inbreng van (toekomstige) bewoners gaat de gemeente aan de slag om de visie te maken voor fase 2 en 3. De gemeente overlegt ook met de provincie en het waterschap.


Stap 2: Stedenbouwkundig plan maken

Wanneer de visie klaar is, maakt de gemeente voor fase 2 een concept stedenbouwkundig plan. Hierin staat precies waar de huizen komen, waar de wegen lopen en waar plek is voor parkeerplaatsen, groen en water. Dan kunnen de (toekomstige) bewoners van Rouveen Zuid opnieuw hun mening geven.

De gemeente maakt ook een financiële berekening van het stedenbouwkundig plan. De gemeenteraad neemt vervolgens een besluit over het stedenbouwkundig plan en het geld.

Het stedenbouwkundig plan voor fase 3 maakt de gemeente over een aantal jaren. Dan kijken we opnieuw naar wat voor soort woningen dan nodig zijn en hoe we de openbare ruimte het beste kunnen inrichten.


Stap 3 Omgevingsplan en omgevingsvergunning

Om echt te kunnen bouwen in Rouveen Zuid Fase 2, zijn ook nog ruimtelijke procedures nodig voor wijzigen van het omgevingsplan en het verlenen van de omgevingsvergunningen.

Wilt u wonen in Rouveen Zuid – Fase 2?

Op dit moment kunt u zich nog niet aanmelden of inschrijven. Via de nieuwsbrief informeren wij u over het vervolg.

Start aanleg fiets/voetgangersbrug


In nieuwsbrief 10 kon u al lezen dat er een brug komt over het water tussen de Multifunctionele Combischool Rouveen (MCR) en de woonwijk (Fase 1). Deze brug is bedoeld voor fietsers en voetgangers.


Op 22 september starten we met de bouw van de brug. Om dit te kunnen doen, maken we tijdelijk een dam in het water. We verwachten dat de brug eind oktober klaar is.

Ter info:

Stadsweg afgesloten voor onderhoud


Vanaf maandag 8 september wordt onderhoud uitgevoerd aan de Stadsweg in Rouveen. De weg is daarom afgesloten. De werkzaamheden duren naar verwachting tot en met vrijdag 3 oktober.


>> Lees meer op onze website

Meer informatie?


Meer informatie staat op: www.staphorst.nl/rouveen-zuid

© Deze nieuwsbrief is een uitgave van Gemeente Staphorst. U krijgt deze nieuwsbrief omdat u zich daarvoor hebt aangemeld of omdat u eerder deze nieuwsbrieven kreeg. Is deze nieuwsbrief aan u doorgestuurd en wilt u de nieuwsbrief rechtstreeks in uw mailbox krijgen? Dan kunt u zich voor deze nieuwsbrief aanmelden. Wilt u deze nieuwsbrief niet meer ontvangen, klik dan op de link helemaal onderaan deze nieuwsbrief.

Wilt u deze nieuwsbrief niet meer ontvangen, klik dan hier om u af te melden.